|
Kompaktschalter in Festeinbau und Motorantrieb
|
|
Kurzbeschreibung
|
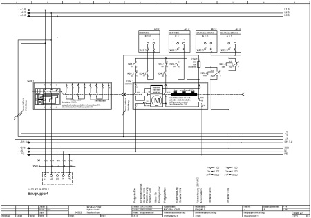
Ansicht Stromlaufplan
|
- Leistungsschalter sind technisch hochwertige Schaltgeräte mit integriertem Schutz für Motoren, Leitungen, Transformatoren und Generatoren.
- Über die Busanschaltung (zwei DI Schaltzustand und zwei DA Schalter "Ein" und "Aus") ist eine Fernsteuerung möglich.
|
|
|
Anwendung
|
- Leistungschalter werden in Netzschaltstellen mit Dauereinschaltung oder geringer Schalthäufigkeit für die Versorgung von Schaltanlagen und Verteiler eingesetzt.
- Der Leistungsschalter ist in der Lage den Überlast- oder Kurzschlußstrom eine bestimmte Zeit zu führen und ihn zu unterbrechen.
|
|
|
|
Copyright © 1999 by MOStec GbR Jakobi Josef und Norbert
|